Выполненные проекты
Проектная документация для Центра управления в кризисных ситуациях ГУ МЧС России по Бурятии
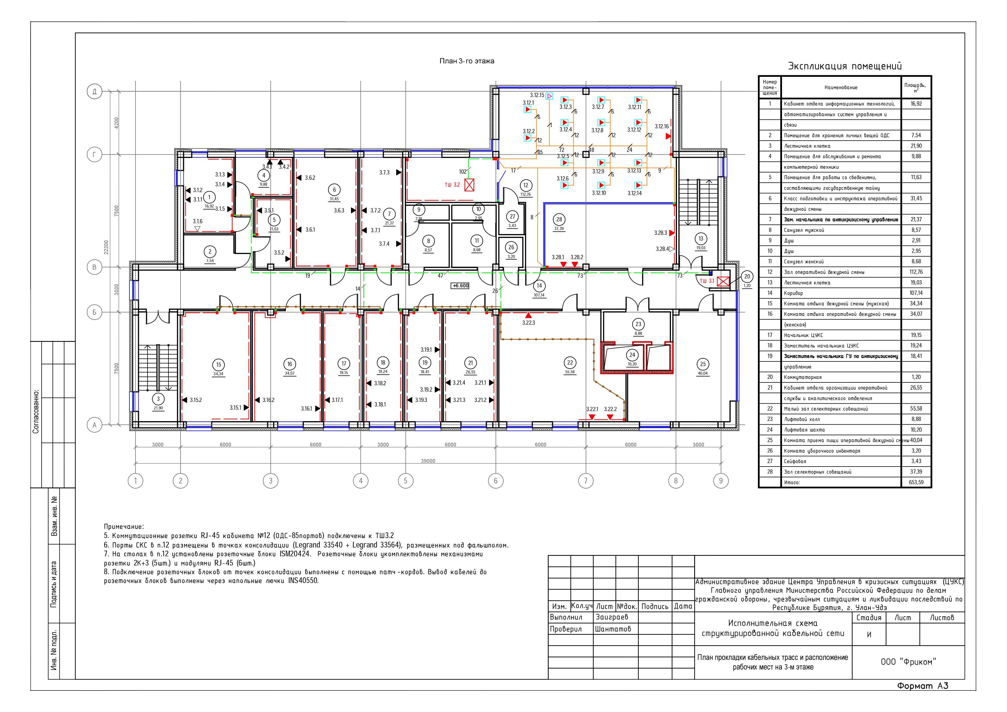
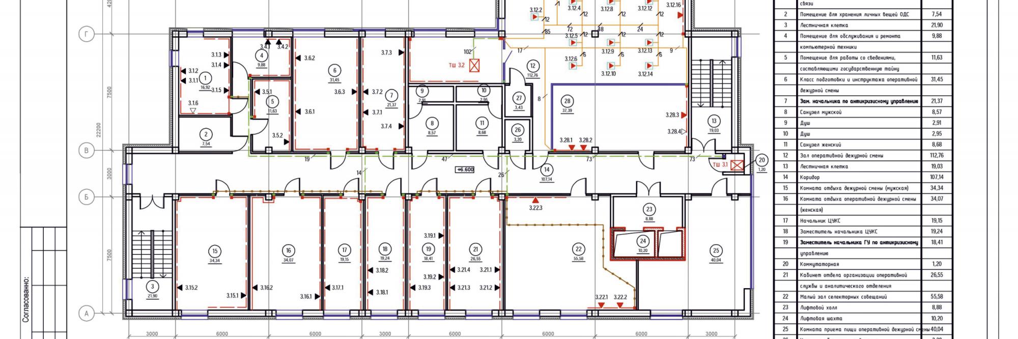
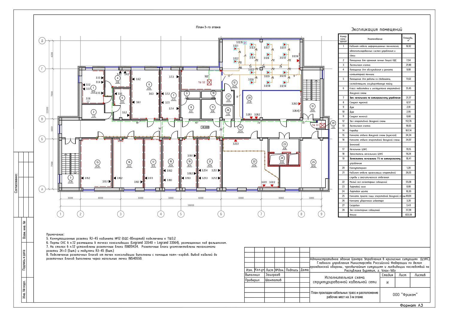
Новое здание Центра управления в кризисных ситуациях ГУ МЧС России по Бурятии было сдано в эксплуатацию в 2018 году. Общая площадь пятиэтажного здания - 3360 квадратных метров.
Для этого здания специалистами нашей компании была разработана проектная документация по системам СКС, ЛВС, СКУД и видеонаблюдения. В последующем, все решения были реализованы на объекте строительства.
В проекте можно отметить следующие технические решения:
Для этого здания специалистами нашей компании была разработана проектная документация по системам СКС, ЛВС, СКУД и видеонаблюдения. В последующем, все решения были реализованы на объекте строительства.
В проекте можно отметить следующие технические решения:
- Система фальшполов в помещениях машинного зала и зале оперативной дежурной службы (ОДС) общей площадью 180 кв. метров.
- Точки консолидации производства Legrand, размещенные под фальшполом в зале ОДС, позволяющие оперативно производить перемещение рабочих мест, а также обеспечивающие надежную коммутацию.
- Общее количество портов СКС – 400 шт.
- Система контроля доступа с учетом рабочего времени.
- Система видеонаблюдения на базе программного обеспечения Macroscop и 4 МП видеокамер с высокой частотой кадров (60 к/с).

